現在カート内に商品はございません。

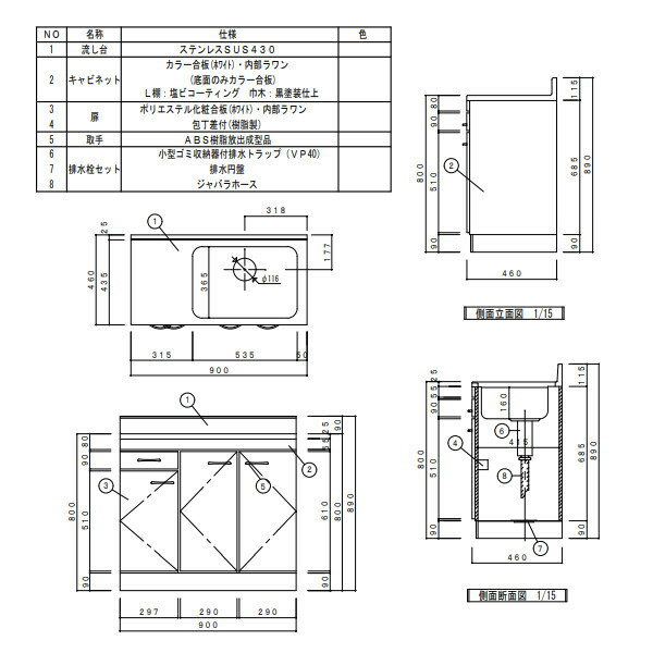
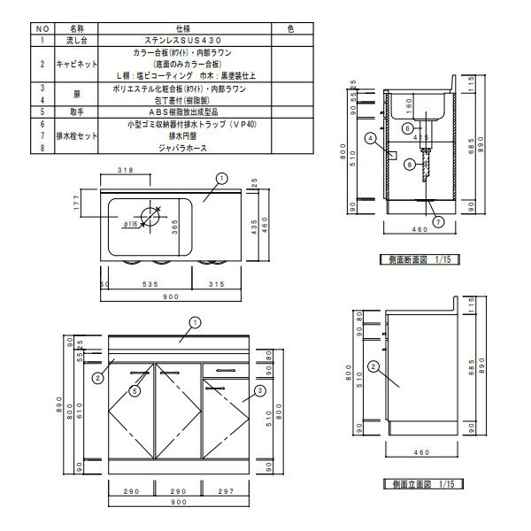
【11月はエントリーでP10倍】 ドルフィン キッチン Bシリーズ 流し台BA 2519 間口90cm 奥行46cm 900 460 セクショナルキッチン 賃貸アパート リフォーム BA900R 【大阪府送料無料】 リフォーム

31,200税込
商品コード: j-relife:10024145
この商品は大阪府限定販売商品です。 ※大阪府内でも一部配送無料対象外地域がございますのでご了承ください。 【サイズ】900x460x800/90mm 【材質】流し台:ステンレスSUS430、キャビネット:両面白化粧パーチ、L棚 塩ビコーティング・巾木 黒塗装仕上、扉:ポリエステル化粧合板(ホワイト)・内部ラワン、包丁差付(樹脂製)、取手:ABS樹脂放出成型品、排水栓セット:小型ゴミ収納器付排水トラップ(VP40)、排水円盤、ジャバラホース ※図面の仕様が誤っている場合があります。ご注意ください。 【発送情報】メーカー直送品です。 こちらの商品は(ドルフィン)からお送りいたします。 ※送料無料エリアはメーカーの自社便にてお届けしています。 方面によってお届け可能日が限られる場合があり、その際はお届け日の調整にご協力をお願いいたします。
RANKING ランキング